Leave a Message

Thank you for your message. We will be in touch with you shortly.

Explore Our Properties

Property Description

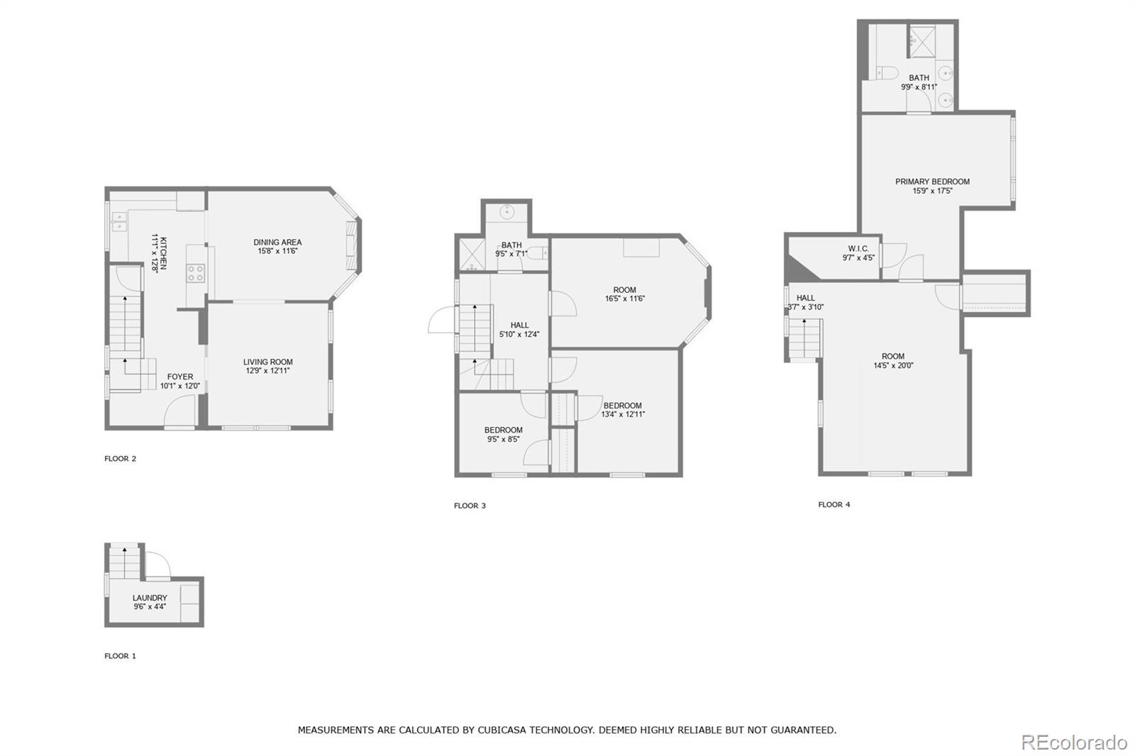
Welcome to 1542 Cook Street. Just two blocks from Denver's crown jewel, City Park, this turn-of-the-century, traditional style, home blends historic charm and easy, urban living with high ceilings, an open kitchen/dining flow, and a sunny loft/bonus room. Thoughtfully remodeled in 2001 and lovingly maintained. Spend Sundays at City Park Jazz, mornings at the Denver Zoo or the Museum of Nature & Science, and tee times at the municipal course--all in your backyard. Delight in neighborhood favorites like Olive & Finch and Bastien's Restaurant, with Cafe Miriam for your coffee fix. Just minutes away from Cherry Creek shopping and dining. With over 3,000 square feet and 5 bedrooms, this home is ready for you to spread out! Inside, soaring ceilings and an open kitchen-and-dining area create an airy, social heart to the home. A sunny loft/bonus room adds flexible living space--perfect for a second living room, studio, or play space. Below the welcoming front porch, a Colorado-perennial garden and an apple tree set the scene for quiet evenings and weekend gatherings. City living for a city lover--on a peaceful, tree-lined block. The separate, walk-out basement was an income-producing AirBnB averaging about $1,600/month--off-set your mortgage by "house hacking" (living in the main home while your separate space helps pay the mortgage) OR use it as an ADU-style suite, home office, studio, or a long-term rental.

Overview

Property Status
Sold
Lot Size
6,255 Sq.Ft.
MLS ID
3807026
Property Type
Residential
Year Built
1903

Features & Amenities

Total Area
3,006 Sq.Ft.
Architecture Styles
Victorian
View Description
City
Stories
3
Garage Spaces
2.0
Water Source
Public
Roof
Composition
Lot Features
Level, Sprinklers In Front, Sprinklers In Rear
Parking
Exterior Access Door
Heat Type
Forced Air
Air Conditioning
Air Conditioning-Room, Central Air
Appliances
Dishwasher, Disposal, Dryer, Oven, Refrigerator, Washer
Other Interior Features
Entrance Foyer, High Ceilings, Kitchen Island, Open Floorplan, Smoke Free, Walk-In Closet(s)
Sewer
Public Sewer
Other Exterior Features
Garden
Elementary School
Teller
Middle School
Morey
High School
East
School District
Denver 1
Sales Price
$825,000
Real Estate Tax
$2,864/yr
Zoning
U-TU-B

Downloads

1542 Cook Street

Schedule a Tour

We would love to help you see this beautiful home! As a full-service brokerage, we can help you tour. Please submit an offer, and answer questions about the buying process.

Thank you

for your interest in 1542 Cook Street, Denver, CO 80206

I'm Interested In

1542 Cook Street

or
  • CallRobert Tait

    License #FA100043948 | 100043948

    (303) 888-0194
  • 1542 Cook Street
    Navigate
    1542 Cook Street
    explore in 3d

    Follow Us On Instagram